طباعة
بالخرائط والصور.. تفاصيل مخطط "بيت شتراوس" بالقرب من المسجد الأقصى
كشفت مؤسسة الأقصى للوقف والتراث اليوم الأحد بالخرائط والصور عن تفاصيل المخطط الإسرائيلي الذي تنوي السلطات الإسرائيلية تنفيذه عند باب المغاربة، ويضم كنيساً يهودياً ضخماً ومركز شرطة، وذلك بعد ان هدمت جرافات الاحتلال واجهات لمبانٍ تاريخية عريقة في المكان المذكور.
جاء ذلك خلال مؤتمر صحفي عقدته المؤسسة في الحكواتي بالقدس، شارك فيه الشيخ رائد صلاح رئيس الحركة الاسلامية في الداخل الفلسطيني، وفضيلة الشيخ عكرمة صبري رئيس الهيئة الاسلامية العليا في القدس، ومحمد زيدان رئيس لجنة المتابعة العليا للجماهير العربية في الداخل، والمهندس أمير خطيب –مدير "مؤسسة الاقصى".
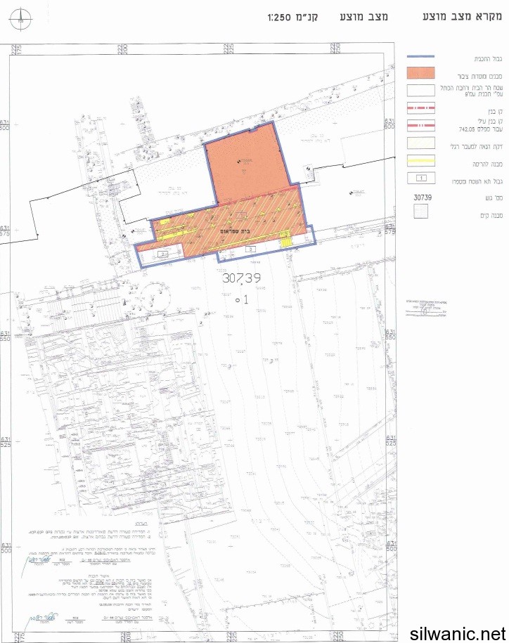
وقدم المهندس أمير خطيب شرحاً مفصلاً عن المخطط الاستيطاني المسمى " بيت شتراوس" والذي سيكون عند السور الغربي للمسجد الأقصى ولا يبعد سوى 50 مترا هوائيا عنه، وهو ملاصقاً ليسار المدرسة التنكزية في الواجهة الشمالية لساحة البراق تطل عليها مباشرة ، ويحوي هذا البناء المخطط على مدرسة دينية وكنيس يهودي ، ومركز شرطة عملياتي متقدم ، وقاعات للإثراء التهويدي حول ما يسمونه "إرث المبكى" ، قاعة استقبال كبيرة بفناء رحب، مداخل عريضة ومتعددة لزوار النفق الغربي ومركز الزوّار" قافلة الاجيال، عشرات الوحدات الصحية "حمامات عامة" ، وغرف التشغيل والصيانة.
والمخطط عبارة عن عمليات توسعة وترميم وتغيير لمبنى قائم على ثلاثة طوابق ،هو في الأصل مبنى يقع ضمن حدود حي المغاربة المشهور ، والمبنى عبارة عن بناء حكومي إسلامي تاريخي وعقارات وقفية ، من الحقبة الاسلامية المتقدمة ومن الفترة المملوكية والأيوبية والعثمانية ، ، وقام الاحتلال بالاستيلاء عليه بعد الاحتلال عام 1967م وأطلق عليه اسم "بيت شطراوس " ، واستعمله كمدخل رئيسي لنفق الجدار الغربي وما يسمى بـ "مركز الزوار – قافلة الأجيال" ، ومكاتب لمؤسسات تهويدية – مكتب صندوق إرث المبكى ، ومكتب ما يسمى بـ " راب المبكى والأماكن المقدسة"-
ويخطط الاحتلال في هذه الايام لتنفيذ توسعات ضخمة للمبنى القائم ، إضافة مبنى من طابقين – على مستوى الطابق الاول والثاني ، وبناء طابق إضافي فوق الطابق الثالث ، ليصبح المبنى ذا اربعة طوابق ، بالإضافة الى عمليات ترميم وتغييرات وتوسعة في المبنى القائم ، بتكلفة 20 مليون دولار ، ويقوم بتنفيذ هذا المشروع ما يسمى بـ " الشركة لتطوير الحي اليهودي في البلدة القديمة" - ، ما يسمى بـ " صندوق من أجل إرث المبكى"- وهي شركة حكومية تابعة مباشرة لمكتب رئيس الحكومة الاسرائيلية - ، المؤسسة الاسرائيلية الرسمية – وكلها أذرع احتلالية تتشابك فيما بينها لتنفيذ مخططات التهويد والاستيطان - .
ويسبق ويترافق مع البدء بتنفيذ المشروع التهويدي المذكور أعمال حفر تشمل تفكيك وهدم وتفريغ ترابي في أرضيات ، جدران ، وأقواس داخلية في أغلبها من المباني الاسلامية التاريخية ، بالإضافة الى أعمال تبليط حديثة ، الأمر الذي سيؤدي الى تدمير وطمس المعالم الاسلامية في الموقع .
وحذر الشيخ رائد صلاح أن يتم ربط مبنى ما يسمى شتراوس مع المسجد الأقصى ويصبح كأنه إمتداد لساحات المسجد الداخلية، ويتم ربط الطابق الأرضي مع شبكة الأنفاق الموجوده تحت المسجد الأقصى، وأعلن الشيخ صلاح أنه ستقام خيمة إعتصام أيام الخميس والجمعة والسبت خلال الأسبوع الجاري بالقدس.





